Vivienda Refugio en las Sierras de Garzón
Servicios:
Modelado 3D
Interior
Ubicación:
Sierras de Garzón, Maldonado
Año:
2020
Superficie:
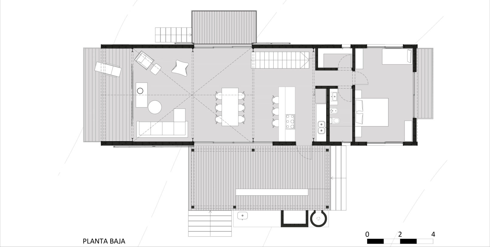
180 m² interiores
En 2020, tuvimos el privilegio de diseñar un refugio en las hermosas sierras de Garzón. La topografía accidentada y los monolitos graníticos del entorno inspiraron un proyecto que destaca por su conexión con el paisaje.
La propietaria, Inés, aportó una visión audaz y despojada, lo que nos llevó a crear una estructura elevada que se asienta sobre el terreno, con un amplio ventanal que desmaterializa el testero y ofrece vistas al valle. Esta característica, junto con una terraza volada, amplifica la experiencia de quienes habitan el espacio.
La vivienda fue diseñada para maximizar la eficiencia, integrando sala, comedor y cocina en un solo gran espacio, complementado por áreas de almacenamiento y servicios. Utilizamos una construcción rápida y materiales de bajo mantenimiento, como chapa ondulada en el exterior y chapones de madera en el interior, junto con pisos de cemento lustrado.
El resultado es una casa de estilo industrial, una nave acogedora que celebra la vida y ofrece un refugio confortable para escaparse de la ciudad con seres queridos.












